Ваша корзина
Разделы каталога



В напольных шкафах ШТК (кроме ШТК-А и ШТК-СП-К) в крыше и в основании имеются отверстия кабельных вводов по 2 каждого вида. В зависимости от объёма подводимого к шкафу кабеля можно удалить требуемое число заглушек и на их место установить щёточный ввод нужного размера.

В навесных шкафах всех линеек ШРН (кроме ШРН-х.255 10") любой кабельный ввод в крыше или дне шкафа можно закрыть одним щёточным вводом КВ-Щ-55.210А.

Аксессуар легко крепится к полу или крыше телекоммуникационного шкафа в технологические отверстия. Через щёточный ввод легко проходят кабели, а щетина плотно закрывает образовавшиеся щели, не занятые проводами. Щёточный ввод, помимо функции защиты от пыли и попадания крупных предметов внутрь шкафа, также обеспечивает защиту кабеля от повреждений о края технических лючков. Плотность ворса позволяет зафиксировать кабель в центре технологического отверстия.
Модификации:
Расположение кабельных вводов в шкафах
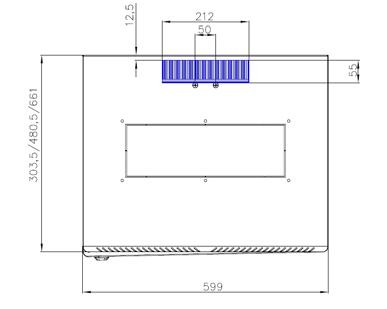
ШРН, используется один комплект КВ-Щ-55.210А на шкаф

ШРН-Э, используется один комплект КВ-Щ-55.210А на шкаф

ШНР-М, используется один комплект КВ-Щ-55.210А на шкаф

ШРН-С, используется один комплект КВ-Щ-55.210А на шкаф

ШТК-М шириной 600 мм, могут использоваться до четырёх комплектов КВ-Щ-55.210А, или до двух комплектов КВ-Щ-55.420А на шкаф


ШТК-М шириной 800 мм, могут использоваться до четырёх комплектов КВ-Щ-55.210А, или до двух комплектов КВ-Щ-55.420А на шкаф


ШТК-К, могут использоваться до четырёх комплект КВ-Щ-55.210А, или до двух комплектов КВ-Щ-55.420А на шкаф


ШТК-С шириной 600 мм, могут использоваться до четырёх комплект КВ-Щ-55.210А, или до двух комплектов КВ-Щ-55.420А на шкаф

ШТК-С шириной 800 мм, могут использоваться до восьми комплект КВ-Щ-55.210А, или до четырёх комплектов КВ-Щ-55.420А на шкаф


ШТК-СП шириной 600 мм при использовании крыши и фальшпола под установку щёточных вводов, могут использоваться до четырёх КВ-Щ-55.210А в крыше, или до четырёх комплектов КВ-Щ-55.420А в фальшполе на шкаф

ШТК-СП шириной 800 мм при использовании крыши под установку щёточных вводов, могут использоваться до четырёх КВ-Щ-55.210А в крыше на шкаф, в фальшпол установка не предусмотрена

Для авторизации, пожалуйста, введите ваши email и пароль
Пароль должен быть не менее 6 символов длиной.
*Поля, обязательные для заполнения.
Вы успешно подписаны на новостную рассылку